Architettura
Architetto d'interni, arredatore di case private ed uffici di rappresentanza
Nel 1935, per incarico dell’Istituto Britannico, realizza sei progetti di abitazione tipo per il personale dell’Aeronautica Inglese a Malta (in collaborazione con i colleghi Cesare Ligini e Gualtiero Costa).
Nel 1939 realizza l’arredamento per la residenza del produttore cinematografico Morielli in Via Caroncini a Roma e l’arredamento dello studio personale di S.E. Ettore Muti a Palazzo Vidoni a Roma ( in collaborazione all’associato di studio Guido Raimondi).
Per lo scrittore Alessandro De Stefani realizza nel 1940 l’arredamento della residenza romana in Via Eleonora Duse (in collaborazione all’associato di studio Guido Raimondi).
Nel 1941, sempre per Alessandro De Stefani, firma il progetto di costruzione e l’arredamento della villa di Fregene (in collaborazione all’associato di studio G. Raimondi e G. Franzi).

1940. Arredamento Residenza De Stefani. Roma

1941. Villa De Stefani. Fregene
Villa Svezia – Contessa Matarazzo
Conosce la Contessa Mimì Marcello Matarazzo, tramite Clemente Lequio suo vicino di studio, che si era trasferita da Venezia a Roma ed era alla ricerca di un’abitazione. Per lei effettua un primo progetto di modifiche di Villa Svezia in Via dei Tre Orologi a Roma (in collaborazione con Guido Fiorini).
Alberto Tavazzi firma inoltre un secondo progetto di trasformazione e restauro, con direzione dei lavori ed arredamento, sia per Villa Svezia che per la residenza del figlio Piero Mele sempre in Via dei Tre Orologi a Roma.

1946. Villa Svezia. Roma

1946. Arredamento Villa Svezia. Roma

1946. Pianta del Piano terra di Villa Svezia. Roma

1946. Pianta del Primo piano di Villa Svezia. Roma
Galleria d’Arte l’Obelisco di Irene Brin e Gaspero Del Corso
Nel 1947 realizza il progetto di restauro ed arredamento per lo Studio Fotografico Bragaglia in Via San Nicola da Tolentino a Roma.
Nel 1947, su incarico di Irene Brin e Gaspero Del Corso, partecipa alla trasformazione a galleria d’arte, effettua la consulenza tecnica e le realizzazioni plastiche della Galleria d’Arte l’Obelisco in Via Sistina a Roma.
Dal suo diario riguardo alla realizzazione del camino alla Galleria dell’Obelisco:
“Irene voleva qualcosa con le rocce, come a Fontana di Trevi. Così dovetti improvvisare con le mani.”

1950. Dedica di Irene Brin ad Alberto Tavazzi

Anni ’50. Irene Brin davanti al camino realizzato da Alberto Tavazzi
Nel 1950 realizza il progetto di trasformazione, restauro, arredamento ed effettua la direzione artistica della residenza romana del Conte Edoardo Matarazzo in Via Nomentana a Roma.
Nel 1950 progetta l’architettura degli interni, l’arredamento del 5° e 6° piano e la sistemazione dei terrazzi della residenza romana dell’Ing. Oberdan Giammarusti in Via Gramsci a Roma, in collaborazione con l’Arch. C. Tavazzi e l’Arch. Lombardi.
Nel 1951 completa il lavoro effettuato per la Contessa Mimi Marcello Matarazzo a Villa Svezia a Roma con la sistemazione della zona di rappresentanza, dello chalet e del giardino.
Nel 1951 progetta il restauro e trasformazione degli appartamenti e delle terrazze ed effettua la direzione dei lavori per la residenza del Maggiore Max Harari in Via Bocca di Leone a Roma.
Nel 1951 esegue la ristrutturazione ed arredamento della casa del Conte Tavo Lovatelli a Roma: progetto, decorazione, arredamento, direzione artistica.
Nello stesso periodo, unitamente alla Hon. Mrs. Taffy Rodd, apre lo studio “Il Mascherone” in Via Giulia 167 a Roma dove ricopre il ruolo di interior decorator.

1951. Residenza Giammarusti. Roma

1951. Residenza Lovatelli. Roma
Ambasciatore USA Clare Booth Luce e Henry Luce
Esegue la ristrutturazione, la progettazione degli interni, l’arredamento e la direzione dei lavori dello studio personale di Mr. Henry Luce, fondatore delle riviste Time, Life e Fortune a Corso d’Italia, Roma, e della casa di Mr. Robert Neville, direttore per l’Italia delle stesse riviste.
Nel 1953 realizza il progetto, la decorazione ed arredamento della hall, soggiorno ed appartamento privato della residenza romana dell’Ambasciatore Americano a Roma, Signora Clare Booth Luce, a Villa Taverna.

1953. Hall Villa Taverna. Roma

1953. Studio Henry Luce. Roma
Agenzia Sicilia
Nel 1953, su incarico dell’Assessore al Turismo della Regione Siciliana On.le D’Angelo, si occupa del progetto di architettura degli interni, delle decorazioni e dell’arredamento ed esegue la direzione artistica per l’Ufficio Informazioni Turistiche dell’Ente del Turismo Siciliano a Via Bissolati a Roma alla cui inaugurazione, nel 1954, partecipa il presidente del Consiglio dei Ministri On. Mario Scelba.
Le pareti sono realizzate dal pittore Luigi Montanarini ed il pavimento in ceramica da Salvatore Meli. Una foto delle vetrine viene pubblicata nel catalogo dei prodotti vetrari Saint Gobain.

1953. Ufficio Informazioni Turistiche dell’Ente del Turismo Siciliano. Via Bissolati, Roma

1953. Ufficio Informazioni Turistiche dell’Ente del Turismo Siciliano. Via Bissolati, Roma

1954. Inaugurazione. Alberto Tavazzi con il presidente del Consiglio dei Ministri On. Mario Scelba . Roma

1954. Inaugurazione. Alberto Tavazzi con il presidente del Consiglio dei Ministri On. Mario Scelba e l’On.le D’Angelo. Roma
Residenza di Valentina Cortese e Richard Basehart
Nel 1954 realizza il progetto di trasformazione, ridimensionamento ed arredamento per la residenza romana degli attori Valentina Cortese e Richard Basehart, suo marito, e del figlio Jackie in Via di Villa Sacchetti a Roma.

1955. Progetto di dettaglio del camino. Roma

1955. Il salone, dettaglio camino. Roma

1955. Foto di famiglia. Residenza Valentina Cortese. Roma

1955. Foto di famiglia. Residenza Valentina Cortese. Roma
Nel 1955 Alberto Tavazzi realizza il progetto di architettura degli interni, l’arredamento ed esegue la direzione dei lavori della residenza romana dell’Avv. On. Salvatore Marino.
Nel 1955 si occupa della progettazione e direzione dei lavori di sistemazione dei locali di rappresentanza dell’Albergo Touring in Via Principe Amedeo 34 a Roma in collaborazione con gli Studi Associati dell’Arch. Bruno Beer.

1955. Arredamento Residenza On. Salvatore Marino. Roma

1955. Albergo Touring. Roma
Seminario Maggiore del Kenya
Nel 1956, per incarico del Delegato Apostolico S.E. Mons. J.R. Knox, progetta il grande complesso del Seminario Regionale del Kenya da erigersi nella zona di Kitale sulla strada che collega il Kenia con l’Uganda.
Il progetto prevede la costruzione di camere singole per 250 studenti, scuole, campi da gioco, una chiesa, una zona dedicata alle Suore, che attraverso successivi sviluppi potesse evolvere in Università Cattolica per l’Africa Centrale.

1956. Modellino del Seminario Regionale del Kenya

1956. Modellino del Seminario Regionale del Kenya
Agenzia Alitalia a Nairobi
Nel 1956 viene incaricato dall’Alitalia della progettazione interna e della direzione artistica dei lavori della loro sede a Nairobi in Delamare Avenue; al suo interno il pavimento in ceramica di 34 mq. realizzato in Italia su suo disegno.

1957. Agenzia Alitalia a Nairobi

1957. Agenzia Alitalia a Nairobi
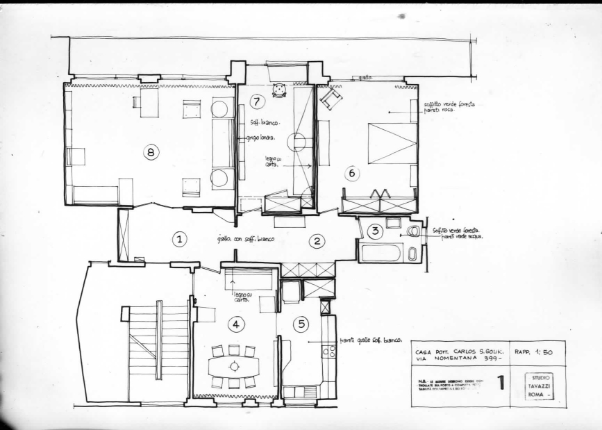
Nel 1957 realizza il progetto di modifiche interne e di arredamento della residenza romana dell’Ing. Carlos Golik in Via Nomentana 399 a Roma.

1957. Progetto residenza dell’Ing. Carlos Golik. Roma

1957. Soggiorno residenza dell’Ing. Carlos Golik. Roma
Agenzia Alitalia a Napoli
Nel 1957 progetta la sistemazione della nuova sede dell’Alitalia a Napoli nel fabbricato dell’Hotel Mediterraneo, rispettivamente 370 mq. dell’Agenzia ed Air Terminal a piano terra e gli uffici amministrativi al primo piano; l’agenzia viene inaugurata il 23 settembre 1958. La realizzazione risulta apprezzata sia per la sua funzionalità che per gli aspetti decorativi.
Da “Il Giornale d’Italia” del 21 dicembre 1958
“A Napoli l’Agenzia e L’Aer Terminal dell’Alitalia occupano i locali a piano terra nel nuovo fabbricato dell’Hotel Mediterraneo in Via Guantai Nuovi, nelle immediate vicinanze di Piazza del Municipio, mentre gli uffici amministrativi sono situati al primo piano con ingresso da Via San Giacomo.
La sistemazione dei vari ambienti dell’Agenzia e dell’Aer Terminal è stata progettata dallo studio Tavazzi di Roma. Essa risulta quanto mai funzionale e appropriata alle svariate esigenze tecniche e operative…. Alla cerimonia inaugurale hanno partecipato, oltre al Presidente e al Vice Direttore generale della Società, il Direttore Generale dell’Aviazione Civile gen. Abbriata, il Commissario staordinario del Comune di Napoli e le più alte autorità cittadine.”

1958. Inaugurazione. Alberto Tavazzi con il Generale Abbriata ed il Dottor
Donato Saracino. Napoli

1957. Rendering nuova sede Alitalia. Napoli

1957. Ingresso nuova sede Alitalia. Napoli

1957. Bancone nuova sede Alitalia. Napoli